Springe auf Hauptinhalt Springe auf Hauptmenü Springe auf SiteSearch
Lüftungshersteller begleitet Fachleute bei Planung, Förderprogramm und Wartung

Mehr Wissen, weniger Reklamationen

Fehlt für eine Weiterbildung die Zeit, wird lieber mit dem Hinweis „Regelmäßig fensterlüften“ gearbeitet. Unzufriedenheit und Rekla­mationen und damit auch ein höherer zeit­licher und finanzieller Aufwand für alle ­Beteiligten sind die Folge. Blauberg Ventilatoren vermittelt daher nicht nur Wissen zu Lüftungsanlagen in Online-Videos und Inter­netportalen, sondern stellt auch einen um­fangreichen Service für Planer, Architekten und Handwerker bereit. Nicht nur rund um die Eigenentwicklungen, sondern bis hin zum Förderprogramm.

Die Lüftungsbranche hat sich in den vergangenen Jahren stark gewandelt: Anfangs haben Kunden ausschließlich auf niedrige Anschaffungs- und Wartungskosten bei den Geräten Wert gelegt. Heute rücken – ausgehend von mehr Wissenstransfer und Transparenz in der Branche – qualitativ hochwertige Lösungen in den Fokus, die langfristig gut funktionieren, in der Bedienung einfach sind und von denen der Hausbesitzer einen Mehrwert hat, beispielsweise niedrigere Energiekosten oder höheren Wohnkomfort.

Bereitstellung von Wissen reduziert ­Reklamationen

Nach Erfahrung von Blauberg Ventilatoren haben jedoch nicht alle Architekten oder Handwerker das Wissen, wie dieser Mehrwert mit Lüftungsanlagen erzielt werden kann. Beispielsweise wählen manche Planer Geräte aus, die zwar die Anforderungen in kleinen Räumen erfüllen, in größeren Zimmern aber den geforderten Mindestluftwechsel nicht einhalten können, sodass Schimmel bis hin zu schwerwiegenden Schäden an der Bausubstanz entstehen.

Außerdem machen manche Installateure Fehler beim Anschließen, sodass die Lüftungsanlage nicht richtig funktioniert. Die Folge sind Reklamationen und unzufriedene Kunden, was die Kostenspirale bei Herstellern, Handwerkern und Bauherrn in die Höhe treibt. Oftmals sehen sich Hersteller nach Lieferung der Ware auch nicht mehr in der Verantwortung, die Handwerker bei Fragen und Problemen auf der Baustelle zu unterstützen – Frusterlebnisse sind bei den Fachleuten somit vorprogrammiert.

Nach Meinung von Blauberg Ventilatoren steht der Bereich Lüftungsanlagen in Deutschland noch immer am Anfang und es herrschen oft große Wissenslücken, die es aufzufüllen gilt. Man muss daher Fachplanern und Handwerkern, die bisher keine oder nur wenige Berührungspunkte mit Wohnraumlüftung hatten, die Möglichkeit geben, sich schnell und einfach Wissen anzueignen. Sind diese Voraussetzungen erfüllt, reduzieren sich auch die Reklamationen durch fehlerhaften Einbau oder falsches ­Anschließen. Damit Fachleute bereits vor der Installation das richtige Produkt auswählen, baut Blauberg vor allem seine ­Online-Service-Angebote kontinuierlich aus.

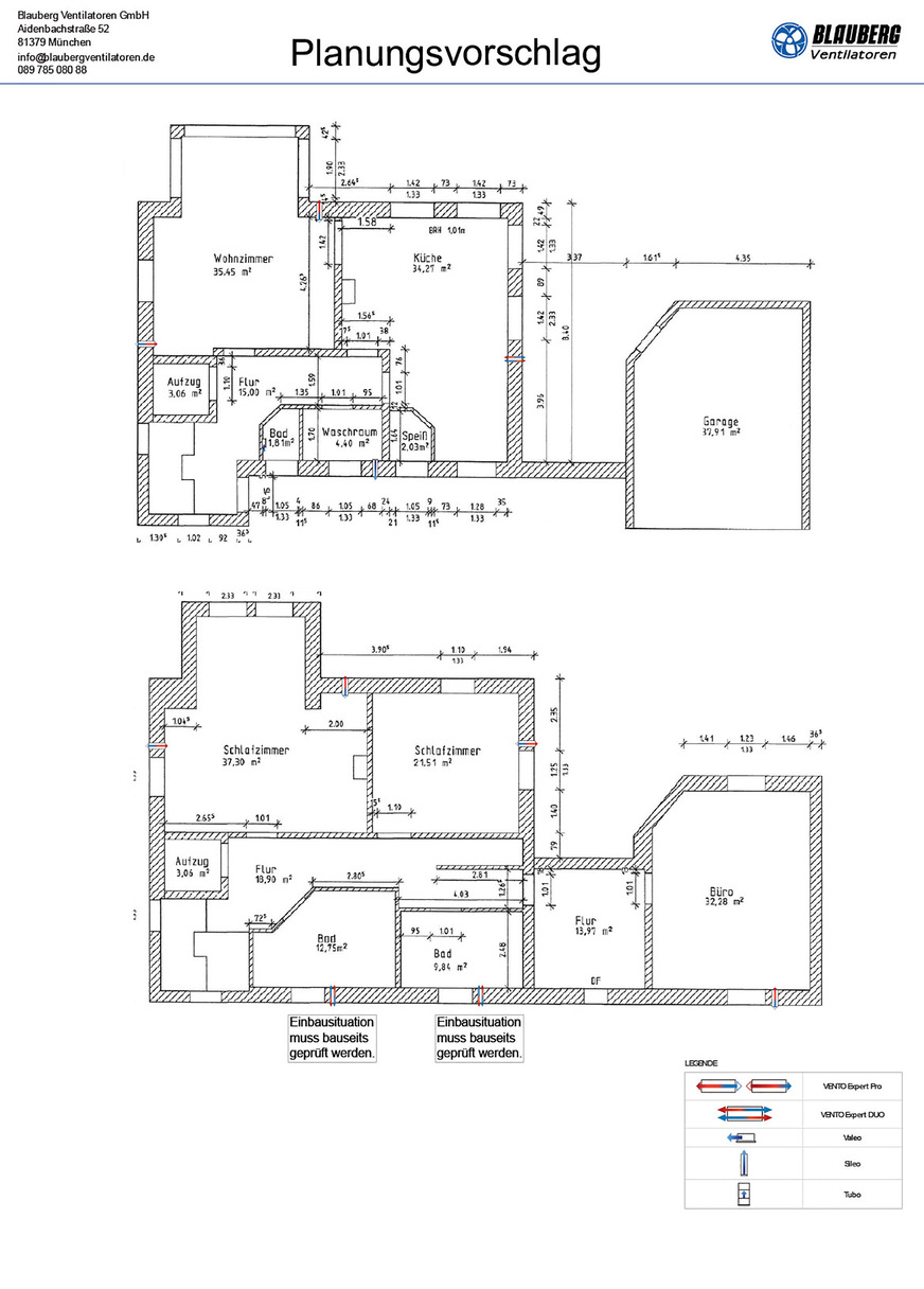
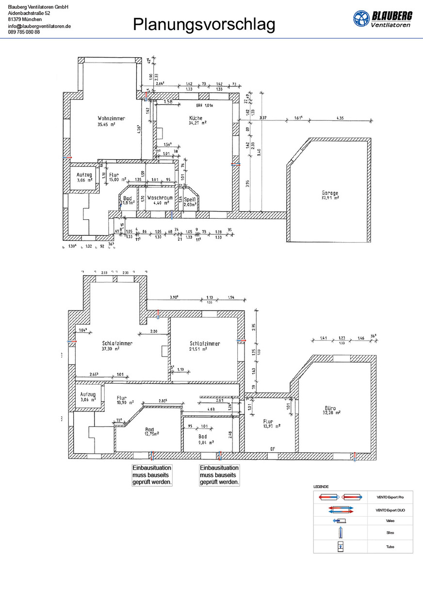
Blauberg Ventilatoren stellt für Hausbesitzer, Planer und Handwerker ein umfassendes Informationsportal bereit, wo auch Planungsvorschläge angefordert werden können.

Bild: Blauberg Ventilatoren

Blauberg Ventilatoren stellt für Hausbesitzer, Planer und Handwerker ein umfassendes Informationsportal bereit, wo auch Planungsvorschläge angefordert werden können.

Aufwand für Fachplaner und Handwerker reduzieren

Um ein grundlegendes Verständnis für zentrale genauso wie dezentrale Wohnraumlüftung bei den beteiligten Gewerken zu erzielen, wurde das Web-Portal www.einzelraumlueftung.de ins Leben gerufen. Dort können sich sowohl Hausbesitzer als auch ­Planer und Installateure gut verständlich über das Thema Wohnraumlüftung sowie geltende Vorschriften informieren und bei Bedarf kostenlose Planungsvorschläge nach DIN 1946-6 für ein Neubau- oder Sanierungsprojekt anfordern. Diese werden innerhalb von drei bis fünf Werktagen erstellt. Hier profitieren die Handwerksbetriebe zudem davon, dass sich die Mitarbeiter von Blauberg sowohl bei den relevanten Fördertöpfen – etwa für KfW-Darlehen – als auch bei den geltenden Normen auskennen und die Planer beraten können.

Daneben erweitert Blauberg sein Video-Angebot auf YouTube. In kurzen Webinaren ist es möglich, sich grundlegend über Wohnraumlüftung sowie detailliert über Geräte zu informieren. Für Fachplaner stehen auf dem Ausschreibungsportal ausschreiben.de, der Online-Plattform Open Datacheck des Verbands DG-Haustechnik oder der Produktinformationsplattform Oxomi Ausschreibungstexte bereit, bei denen es sich ebenfalls um eine kostenfreie Serviceleistung handelt. Dies geschieht mit wenigen Klicks ohne zusätzliche Kontaktanfrage.

Weniger Installations­probleme durch Praxis­seminare

Doch auch die Praxis und speziell die Digitalisierung stellen Handwerker vor eine Herausforderung, denn mit dem digitalen Wandel haben sich auch die Geräte und die Anforderungen an die Inbetriebnahme deutlich verändert. Blauberg hat es sich daher einerseits zur Aufgabe gemacht, die Bedürfnisse der Endkunden bei der Entwicklung neuer Geräte zu berücksichtigen, weshalb alle neuen Produkte Smart Home-fähig sein werden.

Andererseits will man die Fachbetriebe möglichst zielführend an die neuen Geräte heranführen. Dafür stellt Blauberg gut nachvollziehbare Installationsanleitungen zur Verfügung und überarbeitet diese kontinuierlich. Damit sich die Installateure gut auf Gewerke-übergreifende Aufträge beispielsweise mit Heimautomations-Experten vorbereiten können, führt Blauberg bei Großhändlern regelmäßig umfassende Schulungen durch und klärt das dortige Vertriebsteam über die Lüftungsanlagen auf.

Außerdem legt das Unternehmen viel Wert auf eine einfache Installation – egal, ob mit einer analogen Bedienoberfläche ausgestattet oder über WLAN und eine Smartphone-App gesteuert. Die nötigen Installationsschritte zwischen neueren und älteren Modellen unterscheiden sich bei Geräten von Blauberg meistens nur unerheblich oder werden im Laufe der Weiterentwicklung optimiert, sodass Handwerker routiniert an die Inbetriebnahme herangehen können. Das gilt beispielsweise für die WLAN-fähige Gerätereihe Vento Expert: Bis vor kurzem musste der Installateur noch einen Laptop mit auf die Baustelle nehmen, um die Vernetzung mehrerer Geräte durchzuführen, heute reichen einfaches Werkzeug und ein Tablet.

Weiter kontinuierlicher Ausbau des Service-Angebots

Nachdem sich der Handwerker umfassend über die Installation, Inbetriebnahme und Wartung informiert und vielleicht auch ein Seminar besucht hat, bleiben nur noch die Einbauarbeiten auf der Baustelle übrig. Sollten hier trotz guter Vorarbeiten unvorhergesehene Schwierigkeiten auftreten, schafft der telefonische Kundendienst von Blauberg schnell Abhilfe.

Durch die lösungsorientierte Unterstützung des betroffenen Installateurs können die Arbeiten zügig weitergehen und die auftretenden Verzögerungen im Baufortschritt fallen kaum ins Gewicht. Langfristig will Blauberg Ventilatoren nicht nur das Online-Angebot mit Webinaren ausbauen, sondern auch den After-Sales- und Baustellenservice weiter verbessern und eine deutschlandweite Abdeckung erzielen. Denn davon profitieren alle Beteiligten gleichermaßen – Installateur, Planer und Hersteller.

Martin Edler von Dall’Armi,
Geschäftsführer der Blauberg Ventilatoren GmbH, München

Bild: Blauberg Ventilatoren / Dall’Armi

Jetzt weiterlesen und profitieren.

+ KK E-Paper-Ausgabe – jeden Monat neu
+ Kostenfreien Zugang zu unserem Online-Archiv
+ Fokus KK: Sonderhefte (PDF)
+ Webinare und Veranstaltungen mit Rabatten
uvm.

Premium Mitgliedschaft

2 Monate kostenlos testen