Springe auf Hauptinhalt Springe auf Hauptmenü Springe auf SiteSearch
Individuell konzipierte Kühltunnel für schnelle, materialschonende Werkstück-Abkühlung

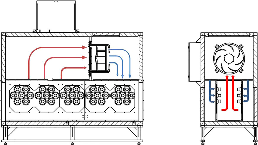
Kalte Luft im Tunnel

Werkstücke, wie beispielsweise Motorblöcke, Kurbelwellen, Kolben oder Getriebe­gehäuse, erwärmen sich durch die entstehende Reibungswärme im mechanischen Bearbeitungsprozess oder in Folge durch
den Einsatz warmer Reinigungslösungen, welche zwangsläufig in den Reinigungs­prozessen erforderlich sind. Diese Erwärmung verursacht Maßänderungen durch die Wärmeausdehnung des Materials. Das weitere Materialhandling, insbesondere eine spannende Präzisionsbearbeitung, wird dadurch behindert. Zudem wird ein zügiger Produktionsprozess beeinträchtigt, da die Bauteile bei einer passiven Abkühlung nur sehr langsam ihre gespeicherte Energie an die Umgebung abgeben, was zu großen Pufferstrecken führt.

Funktionsschema

Bild: BKW

Funktionsschema

Schnelleres Abkühlen

Die Konsequenz dieser physikalischen Tatsache ist, dass sich die Durchlaufzeit im Herstellungsprozess erhöht und teure Produktionsflächen beansprucht werden. Faktoren, die signifikante negative Auswirkungen auf die Produktionskosten haben.

Eine innovative Lösung für diese Fertigungsproblematik bieten individuell konzipierte Kühltunnel, die eine vergleichsweise schnelle und materialschonende Abkühlung des Werkstücks auf die gewünschte Temperatur ermöglichen. Da die zu bearbeitenden Werkstücke meistens auf die Umgebungstemperatur von in der Regel 25 °C abgekühlt werden müssen, scheidet das naheliegende Kühlmedium „Raumluft“ jedoch häufig aus, denn sie kann nur zur Vorkühlung von beispielsweise 60 auf 35 °C genutzt werden.

Aus diesem besagten Grund ist der ­Einsatz von Kühlwasser oder ein aktives Kühlkonzept erforderlich, welches luft- oder wassergekühlt ausgeführt werden kann. Bei dem Einsatz von Kühlwasser oder auch Betriebswasser genannt, werden die Luft und die Bauteile in dem Kühltunnel über einen Luft-Wasser-Wärmeübertrager abgekühlt und bieten somit einen guten und einfachen Wärmeabtransport der eingebrachten Energie.

Wichtig ist, dass die Kühlwassertemperatur unter der gewünschten Werkstücktemperatur liegt. Ist kein geeignetes Kühlwasser vorhanden, sorgt ein integriertes Kälteaggregat dafür, dass die Werkstücke auf die gewünschte Temperatur abkühlen. Gegebenenfalls sogar bis in einen Bereich unterhalb der herrschenden Umgebungstemperatur.

Anfangsphase – Warmer Aggregatzustand

Bild: BKW

Anfangsphase – Warmer Aggregatzustand
Endphase – Abgekühlter Aggregatzustand

Bild: BKW

Endphase – Abgekühlter Aggregatzustand

Module für jeden Bedarf

Die Kühltunnel des Kühltechnikspezialisten BKW werden in Modulbauweise gefertigt und können problemlos an besondere Anforderungen angepasst werden. Der lichte Querschnitt richtet sich nach den Abmessungen der Transporteinrichtung und dem Profil des Werkstückes. Durch die freitragende Bauweise und eine Isolierung ohne Wärmebrücken wird ein niederer Energieeinsatz mit gleichzeitig günstigen Herstellkosten erreicht.

Die Kühllufttemperatur kann durch eine integrierte Mikroprozessorregelung stufenlos und individuell eingestellt werden. Sie passt sich automatisch der schwankenden Belastung im Bandstillstand an. Um eine Kontamination der frisch gereinigten Teile mit Staubpartikeln aus der Umgebungsluft zu verhindern, sind Umluft-Filter der gängigen EU-Filterklassen in den BKW Kühltunnel integriert.

Probieren geht über Studieren

Ein wichtiger Aspekt in der Abkühlung eines Werkstücks ist die bedarfsgerechte Dimensionierung der Kühlleistung. Viele Anwender können keine konkreten Angaben über die abzuführende Wärmemenge machen. Zwar gibt es rechnerische Verfahren, die die Faktoren Werkstückgewicht, Werkstoff, Taktzeit und verfügbare Verweilzeit in dem Kühltunnel berücksichtigen, jedoch werden dabei die Oberflächenstruktur und die verschiedenen Wanddicken außer Betracht gelassen.

Die sicherste Methode zur Bestimmung der Kühlleistung und der benötigten Lufttemperatur sind Abkühlversuche auf den Prüfständen der Kühlspezialisten aus dem süddeutschen Wolfschlugen. Das Werkstück wird in einer Heizkammer auf die vorgegebene Starttemperatur erwärmt. Anschließend wird das Bauteil im Prüfstand mit definierter Luftgeschwindigkeit und Temperatur angeblasen.

Die Kern- und Oberflächentemperatur wird mithilfe von Temperaturfühlern erfasst und dient der Ermittlung einer Abkühlkurve für das jeweilige Bauteil. Zudem können die Temperaturverteilung und ggf. Wärmenester durch eine Wärmebildkamera erkannt werden. Damit erhält jeder Anwender den auf seine Anforderungen optimierten Kühltunnel, der schlussendlich die wichtige Prozess­sicherheit garantiert.

Kühltunnel mit Kondensat-Pumpe

Bild: BKW

Kühltunnel mit Kondensat-Pumpe

Jetzt weiterlesen und profitieren.

+ KK E-Paper-Ausgabe – jeden Monat neu
+ Kostenfreien Zugang zu unserem Online-Archiv
+ Fokus KK: Sonderhefte (PDF)
+ Webinare und Veranstaltungen mit Rabatten
uvm.

Premium Mitgliedschaft

2 Monate kostenlos testen