Springe auf Hauptinhalt Springe auf Hauptmenü Springe auf SiteSearch
Hohes energieEinsparpotenzial durch Unterflur-Luftschleieranlagen

Weniger Wärmeverluste in Logistikanlagen

Im Wohnungsbau hat das Thema Energieeffizienz über die Energieeinsparverordnung (EnEV) zu einer sehr genauen Betrachtung der Einflussgrößen geführt, die die Energieeffizienz negativ beeinflussen können. In Gewerbebauten, speziell Logistikzentren oder Lagerhallen, stellt sich die Situation aufgrund ganz anderer Relationen (z. B. Volumina, Heizwärmebedarf, Nutzungszeiten), vor allem aber der komplexen Wechselbeziehungen (z. B. Lüftungs- vs. Heiz- und Klimatisierungsbedarf, übergangslose Nutzungszonen mit dynamischer Durchströmung usw.) wesentlich differenzierter dar [2].

Nicht zuletzt durch eine Studie des Bundesverbandes Antriebs- und Steuerungstechnik. Tore (BAS.T) rücken auf der Suche nach Optimierungsmöglichkeiten aktuell vor allem die Torsysteme der Gewerbeobjekte als (de)zentrale Energieschleudern“ in den Fokus. Unter dem – nach EnEV begrifflich nicht ganz korrekten – Stichwort Lüftungswärmeverluste heißt es [3]: Wärmeverluste infolge eines geöffneten Tores haben in der Regel größere Auswirkungen auf die Wärmebilanz des Gebäudes als der Wärmeverlust durch Transmission oder Leckagen. Es steht deshalb außer Frage, dass insbesondere zur kalten Jahreszeit eine Minimierung von Öffnungszyklen und der jeweiligen Öffnungsdauer nicht nur unter energetischen, sondern auch unter raumklimatischen und wirtschaftlichen Aspekten zu empfehlen ist.“

Entscheidend ist an dieser Stelle das Wort Minimierung“, denn die Notwendigkeit eines weit geöffneten Tores zur Aufrechterhaltung des zügigen und nur dadurch wirtschaftlichen Warentransports bleibt so oder so bestehen.

Wirtschaftlichkeit der Investition

Gerade im Bestand ist der Ansatz der Minimierung aber fast immer mit einer hohen Einstiegshürde verbunden: Zur Verringerung der Öffnungszeiten muss in aller Regel die Toranlage ausgetauscht bzw. um ein nachgelagertes Schnelllauftor / Folienrolltor ergänzt werden. Beide Maßnahmen sind mit beträchtlichen Kosten verbunden. Vor allem, wenn für die Umrüstung gerade bei älteren Objekten teilweise deutlich in die Gebäudesubstanz eingegriffen werden muss.

Eine ebenso effiziente wie wirtschaftliche Alternative stellen hierzu sogenannte Unterflur-Luftschleieranlagen dar, die speziell für große Gebäudeöffnungen und Industrietore mit Werks-, Straßen- oder Schienenverkehr entwickelt wurden. Während mechanische Tor-Lösungen zur Verringerung der Lüftungswärmeverluste auf eine höhere Öffnungsgeschwindigkeit und/oder eine Reduzierung der Öffnungshöhe setzen, errichten die überfahrbaren Luftschleieranlagen eine nahezu vollständige thermisch-physikalische Barriere zwischen Innen- und Außenluft.Da die Unterflur-Luftschleieranlagen innen oder außen auch nachträglich vor bestehenden Toranlagen installiert werden können, sind zudem die Investitionskosten deutlich geringer. Dies gilt insbesondere für Neubauten, wo ein signifikant hoher Anteil der Investitionskosten bereits über die ohnehin notwendige Planung und Ausführung der Toröffnung abgedeckt wird.

Wirksamkeit auch beim Beladen

Die größten Energieverluste entstehen in Logistikhallen jedoch beim direkten Be- und Entladen, denn dann muss jede noch so gut gedämmte Gebäudehülle zwangsläufig für einen gewissen Zeitraum geöffnet werden. Der BAS.T geht in seiner Studie beispielsweise davon aus, dass bereits bei einer dreiminütigen Öffnungsdauer pro Stunde die Lüftungswärmeverluste … gegenüber den Wärmeverlusten durch Transmission und Leckage überwiegen. Das gilt auch für die beiden Gebäudemodelle Werkstatt und Lager.“

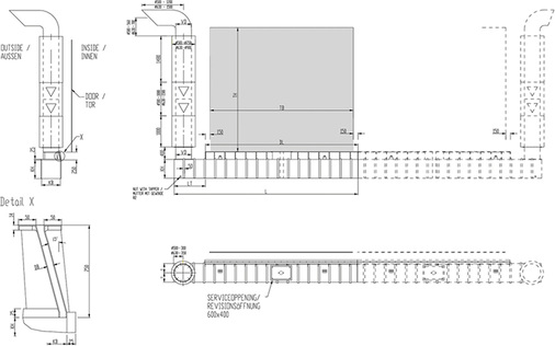
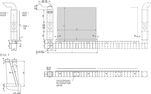
Mit Unterflur-Luftschleieranlagen wird dieser Wirkzusammenhang vollständig entkoppelt: Über die volle Breite einer Toröffnung bauen Anlagen UF 600 von Systemair eine mit bis zu 40 m/s von unten nach oben strömende Luftbarriere auf. Sie wirkt wie ein thermischer Vorhang – und zwar auch dann, wenn für den Be- und Entladeprozess ein Lkw oder Sattelzug nur teilweise in das Gebäude eingefahren ist. In diesem Fall umströmt der Luftvorhang das Fahrzeug vollständig und dichtet so vertikal den verbleibenden freien Querschnitt der Öffnung ab. Im Gegensatz zu mechanischen Torlösungen gibt es also selbst beim beschriebenen Szenario keine nennenswerten Energieverluste mehr. Die Höhe der Einsparungen kann nur geschätzt werden, da die raumklimatischen Rahmenbedingungen gerade in Logistik- oder Produktionshallen für eine präzisere Festlegung zu stark differieren. Fachleute gehen aber von bis zu 70 Prozent aus. Erreicht wird der Effekt durch ein auf die jeweilige Torgröße abgestimmtes Doppel-Axialventilatorensystem, das

über einen oder zwei Energie-Türme die Außenluft ansaugt,

im Bodenkanal vor der Torschwelle komprimiert und

durch eine spezielle Düsenkonstruktion gleichmäßig nach oben ausbläst.

Der wirkungsvolle Impuls im Bodenbereich hat seine größte Dynamik also genau dort, wo die Eindringtiefe der kalten Außenluft ansonsten am höchsten wäre.

Wohlfühlklima für Mitarbeiter

Dieser Effekt ist nicht nur für die thermische Abschirmung und damit für die Energieeinsparung von entscheidender Bedeutung, sondern auch für das Wohlfühlklima im Halleninnern. Der physikalische Hintergrund: Bei geöffneten Toren entweicht die angewärmte Hallenluft aufgrund der Temperaturdifferenz zwischen innen und außen selbst dann durch den oberen Torbereich, wenn ein Lkw einen Teil der Öffnung ausfüllt. In der Folge strömt mit vergleichsweise hoher Geschwindigkeit zumeist deutlich kältere Außenluft nach. Es kommt zu Zugerscheinungen und massiven Luftturbulenzen in der Halle, die die Mitarbeiterinnen und Mitarbeiter an tornahen Arbeitsplätzen stark belasten.

Wie stark diese Belastungen sind, hängt dabei wesentlich von der Temperaturdifferenz ab. Je wärmer es in der Halle ist, umso mehr Kaltluft strömt bei geöffnetem Tor nach. Die Zugluft wird damit über die Luftgeschwindigkeit hin-aus noch unangenehmer wahrgenommen, als dies bei einem geringeren Tempe-raturunterschied (t) der Fall ist. Die bekannte Folge sind höhere Kranken-raten bei Mitarbeitern, die ihren Arbeitsplatz in Tornähe haben, oder zumindest eine generell stärker ausgeprägte Unzufriedenheit mit den Arbeitsbedingungen, die letztlich ebenfalls zu einer reduzierten Leistungsfähigkeit führt. Gerade in hoch spezialisierten Branchen wie der Autoindustrie oder dem Maschinenbau kann das erhebliche Auswirkungen auf die Produktivität haben.

Individuell präzise ausgelegt

Den über die Unterflur-Luftschleieranlage erzeugten Luftvorhang zusätzlich zu erwärmen, wäre technisch zwar ebenfalls problemlos möglich. Es würde aber aufgrund des zusätzlichen Energiebedarfs die Wirtschaftlichkeit konterkarieren – und das eingangs definierte Ziel einer nachhaltigen Verbesserung der Energiebilanz durch signifikante Verringerung der Lüftungswärmeverluste gleich mit. Wie viel das ausmacht, zeigen belastbare Praxiswerte von Türluftschleiern: In deren vergleichsweise stabilen thermischen Umfeld müssen zur Erwärmung des Luftschleiers an einem 2,5 x 2,5 m großen Warenhaus-Durchgang 30 kW aufgewandt werden. Demgegenüber steht ein Leistungsbedarf von lediglich 22 kW zur kinetischen Abschirmung eines 5 x 5 m großen Logistiktores.

Systemair setzt vor diesem Hintergrund nicht auf die Erwärmung, sondern auf die sehr präzise Auslegung der Unterflur-Luftschleieranlage unter Berücksichtigung der baulichen und topografischen Rahmenbedingungen. Dazu gehört beispielsweise auch die Ausrichtung der Toranlagen unter Beachtung der durchschnittlich herrschenden Windrichtung und des allgemeinen Winddrucks. Darauf werden dann zum Beispiel die Leistung der Doppel-Axialventilatoren oder die Anzahl der benötigten Flügelräder und deren Anstellungswinkel abgestimmt. Die individuelle Auslegung dieser Komponenten ist letztlich entscheidend für den Energieaufwand, der für die Druckerzeugung des Luftstroms im Bodenkanal als Druckkammer aufgewandt werden muss, um den gewünschten Abschirmungseffekt zu erzielen – also eine entscheidende Frage der langfristigen Wirtschaftlichkeit des Gesamtsystems.

Fazit

Toröffnungen und Verladeeinheiten von Industrieobjekten oder Logistikzentren sind aus energetischer Sicht extreme Kostentreiber. Selbst kürzeste Öffnungszeiten führen zu erheblichen Transmissionswärmeverlusten, die durch mechanische“ Lösungen (wie ergänzende Folienrolltore o. Ä.) nicht abgefangen werden können. Erst über eine thermisch-physikalische Entkopplung der Luftströmungen – warme Innenluft drängt bei offenem Tor nach außen, kalte Außenluft strömt in das Halleninnere nach – durch eine Unterflur-Luftschleieranlage kann eine messbare Energieeinsparung erreicht werden.

Individuell ausgelegte Systeme wie die Unterflur-Luftschleieranlage UF 600 von Systemair erreichen diesen Effekt sogar ohne weitere Anwärmung des schützenden Luftvorhangs. Stattdessen sind hier das präzise definierte Volumen der über den Unterflurkanal geleiteten Luftströme und die abgestimmte Ausblasgeschwindigkeit entscheidend. In Kombination mit der vergleichsweise einfachen Installation der Unterflur-Luftschleieranlage selbst in der Nachrüstung trägt dies erheblich zur Gesamtrentabilität solcher Systeme bei.

www.systemair.de

Gerlinde Fuss,

Key Account Managerin bei der Frico AB Schweden; einer 100-prozentigen Tochter der Systemair Gruppe

Fußnoten

[1]Klimaschutz liefern, Logistikprozesse klimafreundlich gestalten; Kurzstudie, Fraunhofer IML; Mai 2011

[2]Gesamtanalyse Energieeffizienz von Hallengebäuden; Institut für Technische Gebäudeausrüstung Dresden – Forschung und Anwendung GmbH und Universität Kassel, Fachgebiet Bauphysik; Juni 2011

[3]Unterschiedliche Torsysteme in Industriegebäuden unter Berücksichtigung energetischer, bau-klimatischer und wirtschaftlicher Aspekte; BAS.T, Technische Universität München – Lehrstuhl für Bauklimatik und Haustechnik; Juni 2013

Jetzt weiterlesen und profitieren.

+ KK E-Paper-Ausgabe – jeden Monat neu
+ Kostenfreien Zugang zu unserem Online-Archiv
+ Fokus KK: Sonderhefte (PDF)
+ Webinare und Veranstaltungen mit Rabatten
uvm.

Premium Mitgliedschaft

2 Monate kostenlos testen