Springe auf Hauptinhalt Springe auf Hauptmenü Springe auf SiteSearch
Absorptionskälteanlagen zur Energiesparenden Kühlung mit Wärme

Von Bienen, Hummeln und Hornissen

Die Kühlung von Gebäuden und Räumen wird auch für uns in Mitteleuropa immer wichtiger. Nicht nur der Klimawandel, der im Sommer wärmere Sommertage und immer häufiger Hitzewellen bringt, lässt uns schwitzen, sondern auch die heutige lichtdurchlässige Bauweise mit sehr viel Glas. Ganz besonders der technische Fortschritt mit modernen Rechenzentren, Telefonanlagen, Serverräumen, Produktionshallen und vielem mehr steigern die interne Wärmelast. Kühlung wird also immer bedeutsamer einerseits aus Arbeitsschutzgründen, aber auch durch die Erkenntnis, dass Klimatisierung zu erhöhter Produktivität führt. Kühlung und Klimatisierung von Räumen tragen wesentlich zum Wohlbefinden von Menschen bei, und das zu Hause, am Arbeitsplatz, im Krankenhaus, im Hotel, im Tagungsraum, überall im täglichen Leben.

Kühlbedarf in Deutschland

Deutschland hat im Vergleich zu vielen anderen Ländern bei der Kühlung noch großen Nachholbedarf, weil in der Vergangenheit bei uns die natürliche Lüftung mit kühler Außenluft, vor allem kühlen Nächten, lange Zeit für die Gebäudekühlung ausreichend war. Die genannten Veränderungen, hier besonders die höheren internen Lasten durch die technische Gebäudeausstattung, der Fassadenaufbau und die Belegungsdichten in modernen Gebäuden führen jedoch dazu, dass das nicht mehr genügt. In einer Studie im Auftrag des Umweltbundesamtes wird eine Steigerung des Kühlungsbedarfs von 25 Prozent bei Wohngebäuden und 50 Prozent bei Nichtwohngebäuden in den nächsten 20 Jahren geschätzt, wobei der Kühlbedarf bei Nichtwohngebäuden ca. einhundertmal höher ist als für Wohngebäude. Es muss demnach in Zukunft mit einer deutlichen Zunahme der CO2-Emission (auch durch Gebäudekühlung) gerechnet werden, wenn sich das bisherige Angebot der Kälteanlagen am Markt nicht verändert.

Energieeinsparung beim Kühlen

Um die angestrebte Reduzierung des CO2-Ausstoßes zu erreichen, muss deshalb mehr und mehr auch hier auf Energieeinsparung geachtet werden. Nun verbrauchen Kompressionskältemaschinen, die den größten Anteil an Kühlungsapparaten haben, bekanntermaßen enorme Mengen von Strom, und das meist zu Spitzenlastzeiten. Das ist weder umweltfreundlich noch kostengünstig. Eine sehr gute Alternative sind deshalb Absorptionskältemaschinen. Sie verbrauchen eine vernachlässigbare Menge an Strom, können mit einem CO2-freien Kältemittel (Wasser) betrieben werden und produzieren Kälte durch Wärme. Geräte, die mit Überschuss-Wärme betrieben werden können, sind hier Favoriten. Das ist besonders interessant im Sommer, wenn überschüssige Wärme aus Müllverbrennungs- und Blockheizwerken sowie Fernwärme und Solarwärme vorhanden sind, aber nicht benötigt werden. Vorhandene KWK-Kapazitäten können besser ausgenützt werden und die Kraftwerke rentabler betrieben werden, wenn die anfallende Wärme Abnehmer findet. Ganzjährig vorhandene Überschusswärme wie die Abwärme von Industrieanlagen, die sogenannte Prozesswärme, deren Nutzung für Industrieunternehmen besonders interessant ist, hat meistens jedoch keine allzu hohen Temperaturen. Kühlanlagen, die Wärme auf niedrigem Temperaturniveau nützen können, sind deshalb besonders gefragt. Ein solches Gerät ist die neue Absorptionskälteanlage (AKA) von Baelz. Hier dient das umweltfreundliche, ungiftige Stoffpaar Lithiumbromid und Wasser der Kälteerzeugung. Die bei Kompressionskältemaschinen auftretende Problematik umwelt- und gesundheitsschädlicher gasförmiger Kältemittel fällt weg. Ein weiterer Pluspunkt der Absorptionskältemaschinen ist, dass sie im Gegensatz zu Kompressionskältemaschinen praktisch lautlos laufen.

Entwicklungsziele bei der neuen Absorptionskältemaschine

Die Herstellung und Weiterentwicklung der Absorptionskältemaschine bei BS Nova in enger Zusammenarbeit mit der TU Berlin, die gemeinsam mit dem AGFW (Energieeffizienzverband für Wärme, Kälte und KWK e. V.), dem BTGA (Bundesindustrieverband Technische Gebäudeausrüstung e. V.) und der TU Dresden, sowie dem ZAE Bayern (Bayerisches Zentrum für angewandte Energieforschung) die Anlagen in einem Demonstrationsprojekt bundesweit in 15 Installationen einsetzt, begann mit der Konzeption eines Gerätes für den mittleren Leistungsbedarf von ca. 50 kW und einem etwas größeren mit ca. 160 kW. Die Größe der Anlage sollte möglichst gering sein, damit sie auch für nachträglichen Einbau in schon bestehende Gebäude geeignet ist. Gewicht und Türgängigkeit der Anlage waren ebenfalls zu berücksichtigen. Diese mittleren Leistungsbereiche waren auf dem Markt bis dahin praktisch nicht vorhanden.

Die neue Anlage

Entstanden ist nun eine kompakte Anlage mit vergleichsweise geringem Gewicht (Tabelle 1), die keine Schwierigkeiten beim Transport macht. Die wesentlich geringere Menge an Kälte- und Lösungsmittel im Vergleich zu anderen Geräten spart außer Gewicht auch Kosten. Angeboten wird die Anlage in zwei unterschiedlichen Größen, genannt Biene“ und Hummel“ (Bild 1). Die Namen beziehen sich zum einen auf die Farbgebung und zum anderen auf die unterschiedliche Größe. Teilmodulare Bauweise erlaubt dank der Neuentwicklung der Absorptionskältemaschinen mit 50 bzw. 160 kW einen Leistungsbereich von ca. 50 bis 320 kW. Das Konzept von Biene und Hummel auf eine 500-kW-Anlage (Hornisse) zu erweitern, wird zurzeit geprüft.

Resultate der Forschungsphase

Während mehrjähriger Feldtests kommen 25 Anlagen zum Einsatz. Sie werden genau beobachtet und die Ergebnisse erfasst. Es zeigt sich, dass besonders beim Einsatz der AKA in Fernwärmenetzen stark variierende Volumenströme im Temperaturbereich von 55 bis 100 °C zu berücksichtigen sind. Diese sehr unterschiedlichen Voraussetzungen können von den modernen AKAs genutzt werden. Als eine sehr günstige Eigenschaft der neuen AKAs zeigte sich ihre Fähigkeit in der lastabhängigen Fahrweise sowohl mit unterschiedlichsten Temperaturen als auch unterschiedlichsten Volumenströmen umzugehen. Eine Volumenstromminderung kann bei Teillast für die Rücklauftemperatur ins Fernwärmenetz günstig sein. Auch die Temperaturspreizung im Antriebskreis von Biene und Hummel kann groß gewählt werden, und es können Kaltwassertemperaturen bis 5 °C erreicht werden. Bei der Kälteleistung im Verhältnis zur aufgewendeten Energie (COP) ergaben sich bei den Anlagen im Feldtest sehr gute Werte von bis zu 0,8.

Bei Integration von Biene und Hummel in vorhandene Nutzungsstrukturen, aber vor allem auch im Sanierungsfall und im Neubau können die Geräte nicht nur als Kälteanlage, sondern auch als Wärmepumpe verwendet werden, wobei sie bis zu 60 °C Nutzwärme zur Verfügung stellen können.

Die Rückkühlungstemperaturen, deren oberes Limit in dieser Technologie bisher bei 35 bis 40 °C lag, konnten durch Reduzierung von Wärmebrücken und Optimierung der Wärmeübertrager bis auf ca. 50 °C erhöht werden. Das wiederum ermöglicht den Einsatz von trockenen Rückkühlwerken, was ein deutlicher Vorteil im Vergleich zu bisherigen Kältemaschinen ist.

Vorteile gegenüber marktüblichen Kälteanlagen

Vergleichsweise niedriger Leistungsbereich von 50 bzw. 160 kW

thermische Prozesseffizienz, COP von 0,8

hohe Spreizungen der Antriebstemperatur > 40 K oder

niedrige Antriebstemperaturen ab 55 °C möglich

Prozessdesign für trockene Rückkühlung

Einsatz als Wärmepumpe für Heizsysteme bis 60 °C

reaktionsschnell, 25 auf 100 Prozent Leistung < 10 min

Türgängigkeit, < 0,86 x 1,52 x 1,9 m (Biene)

effiziente Systemregelung für min. Betriebs-/ Energiekosten

Einbau einer Hummel in der Praxis

Ein aktuelles Beispiel für die Anwendung einer Baelz AKA ist ihr Einsatz bei den Stadtwerken Gießen. Es wurde hier eine Anlage im mittleren Leistungsbereich benötigt, während die marktüblichen meist im Bereich von 300 bis 500 kW lagen und entsprechend groß und schwer waren. Sie wären nicht in die bestehenden Gebäude zu integrieren gewesen, hatten hohe Anforderungen an die Rückkühlung und waren auch zu teuer. Auf dem Markt waren bisher keine geeigneten Kältemaschinen, lediglich bei ausländischen Anbietern, mit denen man in Gießen allerdings keine guten Erfahrungen hatte.

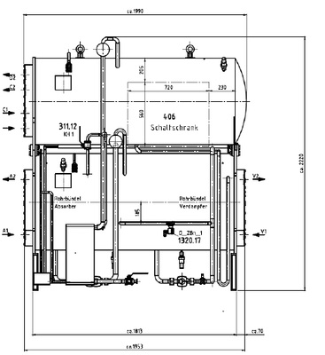
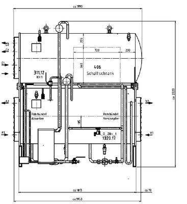
Die Entscheidung der Stadtwerke Gießen zugunsten der Baelz AKA fiel aufgrund ihrer relativ geringen Größe (Bild 2) und verschiedener technischer Vorzüge dieser Maschine (Tabellen 2 und 3). So kann sie durch besonders niedrige Heißwassertemperaturen angetrieben werden. Die Stadtwerke brauchten eine neue Kühlanlage für ein Bürogebäude, zwei Rechenzentren und eine Telefonanlage Die bisherige Kühlung mit Trinkwasser über Plattenwärmeübertrager reichte nicht mehr aus. Zu kühlen waren insgesamt 68 kW. Um auch für Spitzenlast ausreichend Kapazität zu haben, fiel die Wahl auf eine Hummel, die auch 75 bis 100 kW leisten kann. Es ist hier also noch mehr als ein Viertel der Leistungsfähigkeit als Reserve für Spitzenlasten vorhanden. Interessant war außer dem niedrigen Leistungsbereich der sehr gute COP-Faktor von 0,73, den keine der anderen Anlagen erreicht (Teillast bei ca. 30 Prozent). Die Wärme, die von BHKWs erzeugt wird und mit der die AKA betrieben wird, kommt aus dem Fernwärmenetz. Der Heißwasserein- bzw. -austritt liegt normalerweise bei 80 °C/60 °C. Ein trockener Rückkühler kühlt im Sommer die Restwärme der AKA und im Winter nach Abschaltung der AKA direkt die entsprechenden Räume. Im Winter kühlt die Außenluft einen Plattenwärmeübertrager. Ein weiterer wichtiger Punkt, der für die Bälz AKA spricht, ist ihre schnelle Reaktionszeit. Bei plötzlichem Temperaturanstieg ist die Anlage innerhalb von weniger als 10 min von 25 auf 100 Prozent Leistung. So kann eine sehr rasch sich erhöhende Raumtemperatur, wenn beispielsweise die Sonne auf die Südfenster brennt, in kürzester Zeit wieder heruntergekühlt werden.

Fazit

Die thermische Kälteerzeugung mit Absorptionskältemaschinen dient unserem Komfort und dem Schutz der Gesundheit, und das mit umweltschonender, energetisch effizienter Technik. Die Nutzung von überschüssiger Wärme mittlerer Temperatur, die besonders im Sommer anfällt, führt dazu, dass auch die Wärme aus erneuerbaren Energien wie Solarthermie in dieser Zeit nutzbar ist. Die Abnahme von Fernwärme im Sommer trägt zum wirtschaftlicheren Betreiben von Kraftwerken für die Stromerzeugung bei. Biene und Hummel mit ihrem vergleichsweise geringen Leistungsbereich und geringem Gewicht können in bestehende Gebäude integriert werden. Es besteht sogar die Möglichkeit, die Kälte über bestehende Heizungsverteilsysteme in die entsprechenden Räume zu bringen, und die AKA kann auch als Wärmepumpe laufen. Dass die AKAs von Baelz schon mit niedrigen Temperaturen ab 55 °C angetrieben werden können, macht sie besonders interessant. Im Vergleich zu Kompressionskältemaschinen, die sehr viel elektrische Energie verbrauchen und dadurch im Sommer zu einer zusätzlichen CO2-Belastung führen, benötigen die AKAs verschwindend geringe Mengen an Strom. Eine weitere Verbreitung der Kompressionsanlagen könnte so vermieden werden.

Prof. Uwe Bälz,

Berater, W. Bälz & Sohn GmbH & Co. KG, Heilbronn

Dr. Renate Kilpper,

Fachjournalistin, W. Bälz & Sohn GmbH & Co. KG, Heilbronn

Jetzt weiterlesen und profitieren.

+ KK E-Paper-Ausgabe – jeden Monat neu
+ Kostenfreien Zugang zu unserem Online-Archiv
+ Fokus KK: Sonderhefte (PDF)
+ Webinare und Veranstaltungen mit Rabatten
uvm.

Premium Mitgliedschaft

2 Monate kostenlos testen